REF. 1902/187 - Local comercial para remodelar en renta sobre Av. Ignacio Zaragoza
Descripción
Local comercial para remodelar en renta ubicado sobre Avenida Ignacio Zaragoza, vialidad principal con alto flujo vehicular y peatonal, lo que brinda excelente visibilidad para negocios que requieren presencia sobre avenida.
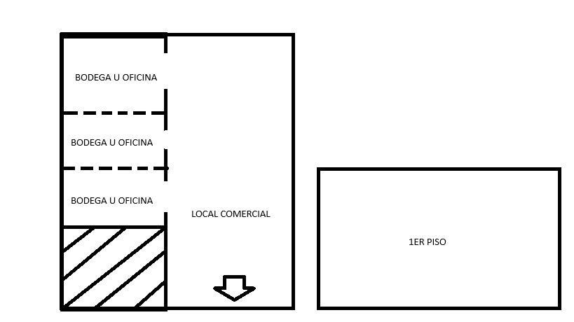
Cuenta con 400 m² en planta baja, ideales para área de atención al público, exhibición o punto de venta, y 120 m² en primer nivel, que pueden destinarse a oficinas administrativas, área operativa o privada de trabajo.
Se localiza a pocos minutos del Metro Acatitla (Línea B), facilitando el acceso para clientes y colaboradores.
El inmueble se ofrece en su estado actual y sujeto a remodelación, lo que permite al arrendatario adecuar el espacio a la imagen y necesidades de su marca o concepto comercial.
Por su ubicación estratégica, es adecuado para diversos giros comerciales y de servicios, como tiendas, consultorios, oficinas de atención al público, centros de servicio, entre otros.
Una opción para negocios que buscan posicionamiento sobre una de las avenidas más importantes de la zona oriente de la ciudad.
Contacto
- Oficina: 1902 - Alfa Inmobiliaria Laandfer Mixcoac
- Av Revolución 1267 Piso 19, Oficina A, Col. Los Alpes, Alvaro Obregón, Ciudad de México
- Teléfonos: 5588415488
- Whatsapp: 5612640740
- Email: [email protected]
- Web: www.alfalaandfermixcoac.com
Información
- Precio de renta: 120,000 MXN
- Año de construcción : 1980
- M2 construidos : 550 m2
- Á total útil : 550 m2
- Medios baños : 2
- Estado de conservación : a reformar
- Puerta : otros.
- Ventanas : otros.
- Suelos : concreto de alta resistencia.
Comparte esta Propiedad: